Gli aspetti costruttivi del Progetto richiedono una messa a punto specifica, che è altrettanto "progettuale". Nonostante la disponibilità di materiali e sistemi costruttivi più o meno collaudati, l'applicazione in un determinato caso non è scontata: l'interazione tra i vari sistemi e la compatibiltà dei materiali e dei prodotti edilizi, infatti, richiedono valutazioni e approfondimenti, e non possono essere demandate alle imprese costruttrici, che spesso operano senza una cognizione adeguata delle specifiche proprietà tecnologiche e non sono in grado di compiere variazioni rispetto alla propria esperienza o di applicare prodotti per esse inusitati. Pure, accade sovente che errori più o meno gravi vengano reiterati, nelle costruzioni, per semplice ignoranza, come ad esempio avviene nel caso delle opere in calcestruzzo armato, che spesso non sono sottoposte alla corretta procedura di stagionatura, a grave danno della resistenza finale.

Tutto ciò rientra nell'ingegnerizzazione, ossia lo studio attento, su basi tecnologiche e scientifiche, degli aspetti costruttivi. Un aspetto cruciale, che costituisce il fiore all'occhiello della nostra attività di progettisti

Una corretta ingenerizzazione, oltre a rappresentare un momento creativo di messa a punto di soluzioni, si pone alla base delle prescrizioni tecniche di capitolato e dei successivi controlli in corso d'opera.

Gli ambiti su cui ci troviamo ad operare comunemente, per via delle criticità e complessità implicite, sono i seguenti:

Materiali cementizi, calcestruzzo e additivi : conglomerato di calcestruzzo (cls) armato, aspetti citici della posa, additivi per la sua messa in opera e per il miglioramento delle prestazioni; cementi speciali, malte e cementi per il consolidamento del calcestruzzo ammalorato e delle murature;

Carpenteria in acciaio leggera e pesante : progettazione e controllo dei dettagli esecutivi, della fabbricazione in officina e/o in opera, dell'assemblaggio, dei giunti di unione (in particolare giunti saldati in opera); protezione dagli agenti atmosferici e dai processi di corrosione (finitura);

Rinforzo e consolidamento dei fabbricati : rinforzi e consolidamenti, aumento della capacità portante, aggiunta o modifica di elementi architettonici (sopralzi, aggetti, soppalchi, apertura vani, rimozione elementi interni);

Opere di impermeabilizzazione e isolamento termico dei fabbricati : studio dei materiali e dei prodotti rispetto alle prestazioni richieste; compatibilità tra i vari strati e, piu in generale, correttezza della stratigrafia;

Dettagli e fissaggi : siamo in grado di affrontare la messa a punto di dettagli costruttivi di ogni tipo, lo studio di fissaggi meccanici e chimici, di valutare l'uso e la compatibilità di svariati materiali (ceramici, metallici, polimerici), nell'ambito delle costruzioni civili e non solo.

Campionature e prototipi : un ruolo essenziale nel processo di ingegnerizzazione è costituito dalla realizzazione, in collaborazione con le ditte fornitrici, di "campionature" (o, nei casi più complessi, veri e propri prototipi) che permettono di verificare le criticità già in fase di progettazione.



Consolidamento di balconi in c.a., edificio residenziale a Milano - Progetto

I balconi del fabbricato, realizzati in c.a. prefabbricato, presentavano dei dissesti chiaramente riconducibili a dei cedimenti delle mensole di sostegno. Il progetto di intervento ha riguardato il risanamento delle solette, il rinforzo delle medesime con struttura intradossale integrativa e sgravio delle mensole esistenti, il risanamento degli elementi in c.a. prefabbricato costituenti le balaustre e il consolidamento dei reciprici ammorsamenti e dell'inghisaggio alla parete portante in muratura.

Progetto e capitolato in collaborazione con Ing. Franco Del Giorgio


Inserimento struttura di acciaio in edificio esistente, Milano

La struttura è stata inserita per sgravare il muro esistente, avente resistenza insufficienete. Data la presenza di aperture lungo i muri perimetrali, si è reso necessario utilizzare dei "bilancini" che hanno permesso l'appoggio in falso dei pilastrini HE 120 B. La necessità di intervenire sulal facciata interna ha inoltre obbligato a realizzare delle mensole incastrate all'interno del fabbricato, per appoggiarvi i ponteggi direttamente al Piano Quarto.

Progetto architettonico e tecnico Arch. Luigi De Ambrogi

Calcolo strutturale Ing. Franco Del Giorgio


Rinforzo soletta in c.a., Milano

Una soletta in c.a. è stata rinforzata per via della scarsa qualità costruttiva originaria e dell'adeguamento alle necessità attuali. Il rinfrozo ha comportato la spinottaura delle travi principali e secondarie esistenti, con barre di acciaio inghisate con resine Hilti, e il getto di una cappa collaborante integrativa di calcestruzzo Rck 45, sollevata di 5 cm con pannelli di polistirolo sagomati, in modo da aumentare l'inerzia della sezione, previa adeguata puntellazione dei locali sottostanti.

Con Ing. Franco Del Giorgio


Inserimento nuova copertura in legno lamellare, Milano

Una copertura monofalda con ordito unico in travicelli di legno, che presentava deformazioni importanti (frecce di 8-10 cm in mezzeria) è stata sostituita con una nuova copertura in legno lamellare a vista, costituita da due travi longitudinali di banchina e travicelli in pendenza di falda. Il pecchetto è stato adeguato dal punto di vista termico e rivestito con dei pannelli in lamiera grecata di alluminio, curvati a scendere in verticale sul lato gronda, tramite "tacchettatura" alla pressa.

La posa delle travi di banchina del tetto sulle piastre di acciaio, intestate su pilastrini anch'essi in acciaio, è stata risolta con imbottiture di malta colabile espansiva.

Progetto architettonico e tecnico Arch. Luigi De Ambrogi

Calcolo strutturale Ing. Franco Del Giorgio

Calcolo termotecnico Per. Ind. Riccardo Cavozzi


Lampada a sbraccio

Un dettaglio studiato e realizzato su misura, facente parte di un gruppo di arredi in acciaio e OSB. La lampada è a sbraccio da un montante, e pivotante intorno ad esso. Il corpo lampada è stato realizzato su misura in carpenteria e poi verniciato alle polveri, e successivamente elettrificato.


Intervento su solai in legno, Varedo

Alcuni solai di un edificio a corte di origine antica avevano ceduto in maniera preoccupante. L'intervento ha previsto l'ispezione di tutti i solai, anche occultati da controsoffitti, e il rinforzo di quelli dissestati tramite l'inserimento di profili in acciaio HE, sezionati per il montaggio tramite giunti bullonati ad attrito, nonché dove possibile il recupero parziale della freccia dei solai.

Progetto ed esecuzione in collaborazione con Ing. Franco Del Giorgio.


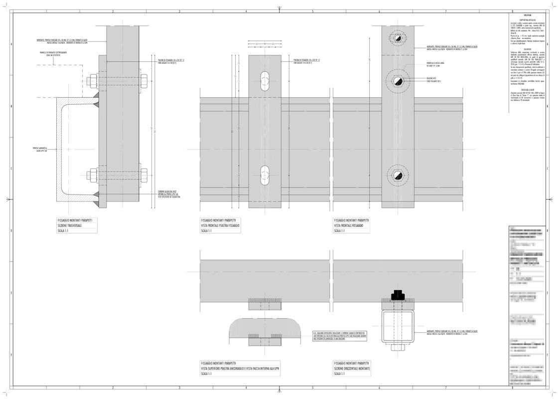
Sovrastruttura di un fabbricato residenziale a Milano - Disegni di fabbricazione e particolari costruttivi

Disegni di fabbricazione e particolari costruttivi carpenterie ed elementi complementari in acciaio: parapetti su misura, profili fermapiedi presso-piegati, sistemi di fissaggio studiati ad hoc, giunto di sezionamento dei piedritti inseriti entro il corpo di fabbrica impermeabilizzato con sistema appositamente studiato.

Progetto ed esecuzione in collaborazione con Ing. Franco Del Giorgio.